Proposed HYATT Project
Barrier Reef Restaurant
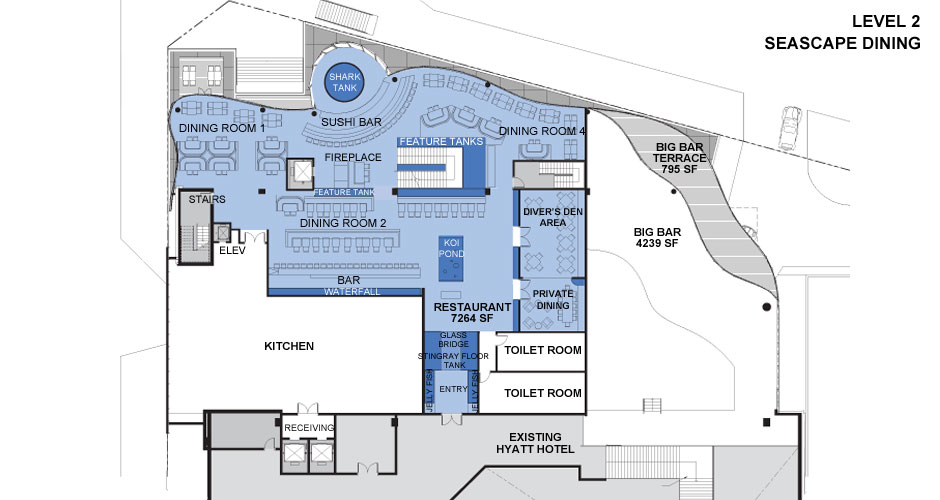
Seascape Dining Floorplan

Level 2
Seascape Dining

Level 2 is an aquatic dining tour de force. Four dining areas. Private dining room. Sushi bar. Floating staircases. See-through aquariums. Sharks. Barracuda. Coral. Iridescent fish. City and river views. Look up from an irresistible menu for a moment and absorb the effect of 1,500 viewable square feet of coral-reef splendor. Returning to the menu won't be easy.

Water Features

  • Entry Jellyfish Aquariums; Total 2,000 gal.
  • Stingray Floor Aquarium 11' x 16' x 2' with Acrylic/Glass Bridge; 2,700 gal.
  • Host Area Koi Pond with View of Hotel Drop-off Area Through Bottom of Pond; 13' x 6' x 3''; 1,900 gal.
  • Three Double-sided Aquariums Viewed from Hallway and Private Dining Rooms; Each 10' x 30" x 42"; Total 2,000 gal.
  • Private Dining Room; Radius-end Aquarium 4' x 4' x 42"; Total 2,000 gal.
  • Dining Room 2; Double-sided Aquarium 25' x 30" x 42"; 1,700 gal.
  • Dining Room 3; Double-sided Aquarium 15' x 30" x 42"; 980 gal.
  • Back Bar Waterfall

Interior Design Features

  • Split Face Stone, Double-sided Fireplace
  • Wood-block Flooring and Plush Carpeting
  • Custom-built Banquettes with Branch-coral Patterned Fabric
  • Custom Seashell Chandeliers
  • Antique Nautical Artifacts
  • Custom-millwork Display Cases

Architecture Features

  • Hotel Drop-off Area View Through Bottom of Koi Pond
  • Glass Stairs
  • Large Sushi Bar Seating 20 Facing Shark Tank
  • 22-seat Bar Facing Waterfall
  • Private Dining Room for 8 or More

 

Total Seating Capacity 257
Total Square Feet 7,264

 


Ground Level:

Level 2:

Roof Top:

Site Design By Bronenkant Web Design